- Woonoppervlakte
- Circa 62 m²
- Inhoud
- Circa 206 m³
- Bouwjaar
- Gebouwd in 2023
- Aantal kamers
- 3 kamers (2 slaapkamers)
Nadat wij recent een koper erg blij mochten maken met de aankoop van Poststraat 37, mogen wij nu opnieuw een fantastisch appartement aanbieden in hetzelfde fraaie complex: Poststraat 35!
Ook dit appartement is modern en energiezuinig gebouwd in 2023, maar met nét dat beetje extra: meer ruimte, twee slaapkamers en verdeeld over twee woonlagen: de begane grond en eerste verdieping. Een unieke kans voor wie comfortabel en ruim wil wonen in het hart van het bruisende Spijkerkwartier!
Wonen in het Spijkerkwartier betekent genieten van de perfecte combinatie tussen historische charme en modern comfort.
Deze populaire Arnhemse wijk kenmerkt zich door prachtige herenhuizen, sfeervolle straten en een levendige mix van gezellige koffiebars, hippe boetiekjes en goede restaurants. Daarnaast wandel je zo naar Park Sonsbeek of het bruisende stadscentrum. Hier woon je in een wijk met karakter én alle gemakken van de stad binnen handbereik.
Ruimte, licht en comfort
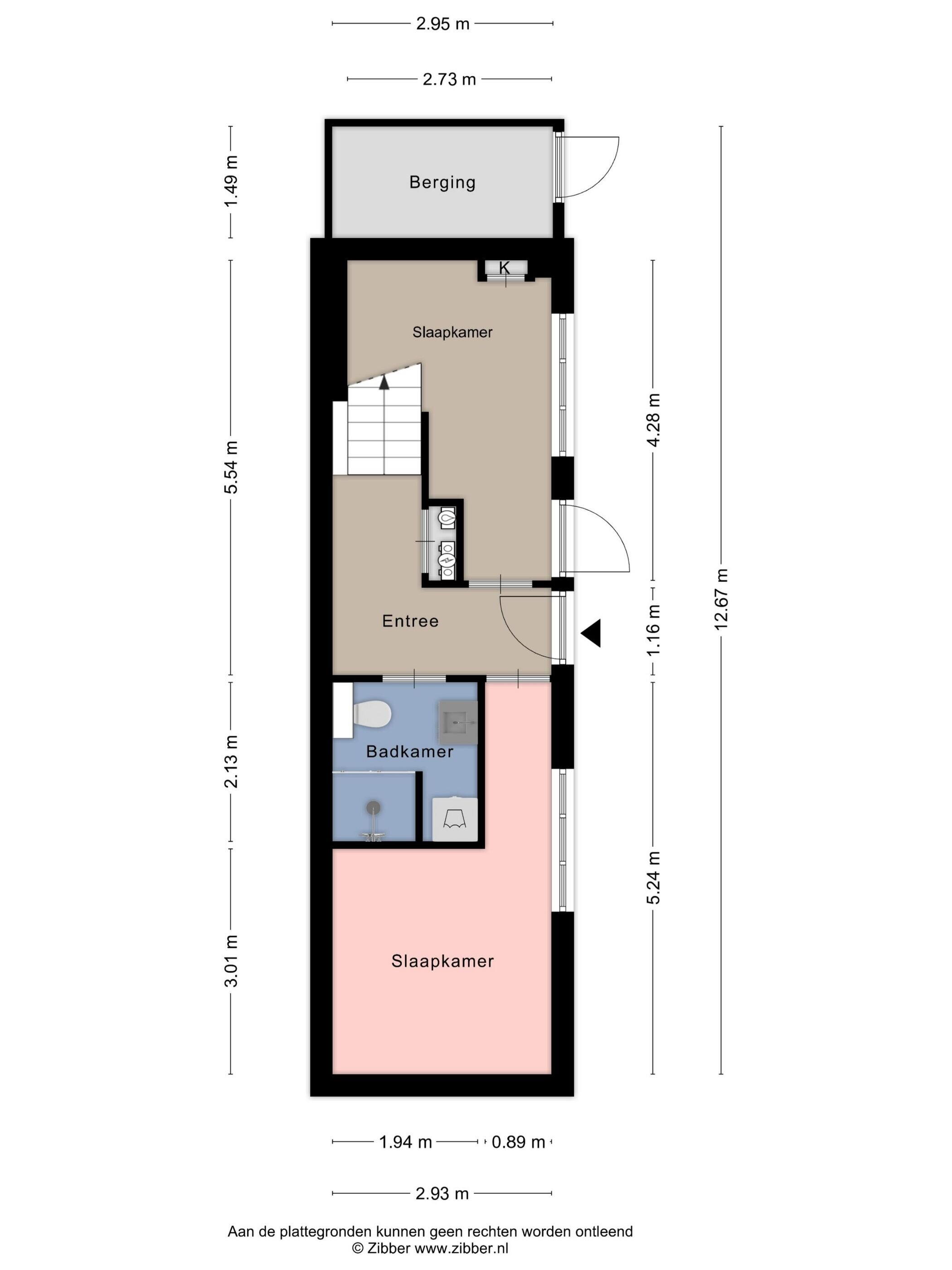
Dit instapklare appartement biedt met zijn ca. 62 m² woonoppervlakte een verrassend praktische en comfortabele indeling. Via de eigen entree kom je binnen in de hal op de begane grond. Hier bevinden zich de twee slaapkamers en de moderne badkamer, voorzien van douchecabine, wastafelmeubel, designradiator, toilet én aansluitingen voor wasmachine en droger. Ook is er een aparte trapopgang naar de eerste verdieping.
Op de eerste verdieping kom je uit op de overloop waar zich het tweede separate toilet en de technische ruimte (tevens berging) bevinden met daarin de warmtepompinstallatie, het MV-systeem en de omvormer voor de zonnepanelen. Vanuit de overloop is er toegang tot het leefgedeelte: een lichte woonkamer met open keuken, voorzien van diverse inbouwapparatuur. Vanuit de woonkamer heb je toegang tot het zonnige terras, een heerlijke plek om buiten te zitten. Daarnaast beschik je over een eigen houten berging op de begane grond en een privé parkeerplaats direct voor de deur.
Perfect gelegen
Met station Velperpoort om de hoek ben je snel onderweg richting Arnhem Centraal, Nijmegen of de Achterhoek. De uitvalswegen A12, A15 en A50 zijn binnen handbereik en ook het openbaar vervoer is uitstekend geregeld.
Bijzonderheden:
• Bouwjaar 2023
• Energielabel A+
• Ca. 62 m² woonoppervlakte
• Twee slaapkamers
• Terras, eigen berging en parkeerplaats
• Actieve VvE, bijdrage ca. € 85,- per maand
• Verkoop onder voorbehoud van gunning
• Niet-zelfbewoningsclausule en ‘as is’-clausule van toepassing
Zie jij jezelf al wonen in dit moderne, ruime en energiezuinige appartement in hartje Spijkerkwartier?
Plan snel een bezichtiging en ervaar het zelf!
Overdracht
- Vraagprijs
- € 298.000 k.k.
- Status
- Verkocht
- Bijdrage VvE
- € 85,00 per maand
Bouw
- Object type
- Maisonnette (appartement)
- Soort bouw
- Bestaande bouw
- Bouwjaar
- 2023
Oppervlakte en inhoud
- Woonoppervlakte
- 62 m²
- Inhoud
- 206 m³
- Externe bergruimte
- 2 m²
- Gebouwgeb. buitenruimte
- 8 m²
Indeling
- Aantal kamers
- 3 kamers (2 slaapkamers)
- Aantal badkamers
- 1 badkamer en 1 apart toilet
- Badkamervoorzieningen
- Douche, toilet, en wastafelmeubel
- Aantal woonlagen
- 2 woonlagen
- Gelegen op
- 2e woonlaag
Energie
- Energielabel
- A
- Energielabel registratie
- 24-02-2023
Buitenruimte
- Balkon / dakterras
- Balkon aanwezig
Bergruimte
- Schuur / berging
- Vrijstaande houten berging
Parkeergelegenheid
- Soort parkeergelegenheid
- Op eigen terrein
VvE checklist
- Inschrijving KvK
- Nee
- Jaarlijkse vergadering
- Nee
- Periodieke bijdrage
- Nee
- Reservefonds aanwezig
- Nee
- Onderhoudsplan
- Nee
- Opstalverzekering
- Nee
Indicatie hypotheeklasten
Eigen inleg:
Spaargeld / overwaarde
Rente:
Laagste 10-jaars rente
Laagste 10-jaars rente
2,78% - Centraal Beheer Groen... - NHG
3,04% - Centraal Beheer Groen... - 80%
Laagste 20-jaars rente
3,29% - Centraal Beheer Groen... - NHG
3,52% - Centraal Beheer Groen... - 80%
Laagste 30-jaars rente
3,41% - Centraal Beheer Groen... - NHG
3,7% - Argenta Groen Hypotheek... - 80%
Hypotheek:
Bruto maandlasten: € 0 p/m
Netto maandlasten: € 0 p/m
Hoe berekenen we dit?
Het rentepercentage is gebaseerd op de laagste 10 jaars vaste rente voor één hypotheekdeel. De vermelde rente (2.78% met NHG) is gecontroleerd op 16-02-2026. Deze berekening is gebaseerd op een annuïteitenhypotheek die volledig wordt afgelost, waarbij de maandlasten gedurende de gehele looptijd gelijk blijven. De werkelijke rente en netto maandlasten kunnen variëren, afhankelijk van uw persoonlijke situatie en de hypotheekverstrekker. Raadpleeg een financieel adviseur voor een nauwkeurige berekening en advies. Aan deze berekening kunnen geen rechten worden ontleend; het dient enkel als indicatie.
Documentatie
Kadastrale kaart
Leefomgeving
WOZ waarderapport
BAG uittreksel
Plattegronden PDF
Lijst van zaken
Vragenlijst Deel B
Meetrapport
Energielabel-poststraat-35
MJOP
Notulen-ALV-2024-poststraat
Brochure
Bezoek onze website
Bezichtiging
Bod uitbrengen
Waardebepaling
Zoekopdracht
Alles downloaden
Zonnegrenzen bekijken
Op de kaart
Inwoners in Arnhem
Cijfers voor postcodegebied 6828
- Totaal aantal inwoners
- 12095 inwoners
- Mannen
- 52%
- Vrouwen
- 48%
Inwoners in Arnhem
Cijfers voor postcodegebied 6828
- tot 15 jaar
- 9%
- 15 tot 25 jaar
- 20%
- 25 tot 35 jaar
- 40%
- 45 tot 65 jaar
- 24%
- 65 en ouder
- 8%
Huishoudens in Arnhem
Cijfers voor postcodegebied 6828
- Eenpersoons zonder kinderen
- 69%
- Meerpersoons zonder kinderen
- 16%
- Huishoudens zonder kinderen
- 85%
Huishoudens in Arnhem
Cijfers voor postcodegebied 6828
- Huishoudens met één kind
- 6%
- Huishoudens met meerdere kinderen
- 9%
- Huishoudens met kinderen
- 15%
Woningen in Arnhem
Cijfers voor postcodegebied 6828
- Woningen voor 1945
- 54%
- Woningen tussen 1945 en 1965
- 15%
- Woningen tussen 1965 en 1975
- 3%
- Woningen tussen 1975 en 1985
- 4%
- Woningen tussen 1985 en 1995
- 13%
Woningen in Arnhem
Cijfers voor postcodegebied 6828
- Woningen tussen 1995 en 2005
- 8%
- Woningen tussen 2005 en 2015
- 2%
- Woningen na 2015
- 2%
- Huurwoningen
- 70%
- Koopwoningen
- 30%
Overige in Arnhem
Cijfers voor postcodegebied 6828
- Gemiddelde WOZ waarde
- € 190.000,-
- Personen onder de 65 met uitkering
- 16%
Overige in Arnhem
Cijfers voor postcodegebied 6828
- Adressen per km²
- 3756
- Stedelijkheid (schaal 1 op 5)
- 100%
Korte feiten over Arnhem
Arnhem is een stad en gemeente in Nederland en de hoofdstad van de provincie Gelderland. De gemeente telt 164.096 inwoners per 31 januari 2022 (bron: CBS) en is daarmee de twaalfde gemeente van Nederland.
Wij helpen u graag verder!
Uw woning is een plek met betekenis. Bij het kopen, verkopen of verhuren van een woning zoekt u een makelaar die dat begrijpt, een makelaar die deskundig is en een creatieve, vernieuwende en effectieve aanpak toepast bij het vinden van uw droomhuis, het verkopen of verhuren van uw woning.
Wij hebben door onze jarenlange ervaring in de vastgoedbranche een uitgebreide kennis en kunnen u van dienst zijn in de regio Arnhem, Liemers en de Achterhoek!
Nieuwste reviews
-
Poststraat 35
Het kontakt met Koopstek (Kim de Kievit) liep prettig en soepel.De zaak werd voortvarend ter hand genomen.Strategie was duidelijk en goed on...
-
Nachtschade 138
Wij hebben de begeleiding als zeer goed ervaren. We zijn regelmatig op de hoogte gehouden. En konden altijd met vragen bij haar terecht.
-
Poststraat 37
Wat mij opviel dat Kim de Kievit zich zeer betrokken toonde.Bedacht een verkoopstrategie die specifiek op het pand van toepassing is.Ze pakt...